Aller à :

  • Aller à la recherche
  • Aller au menu principal
  • Aller au contenu
0
  • Ventes
  • Locations
  • Estimation
  • Recrutement
  • Contact
  • Site groupe
  • Biens vendus
0
VotreRecherche
Dans un rayon de
Budget
entre et €
Min €
Max €
  1. Accueil
  2. Lots
  3. 2a corse du sud
  4. Sarrola carcopino
  5. Villa
  6. T4
  7. Charmante villa neuve sarrola carcopino
Nouveauté
Réf : LOVI14050107642
Villa 131 m²
Nombre de pièces 4
Nombre de chambres 3
676 000 €

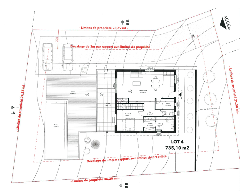
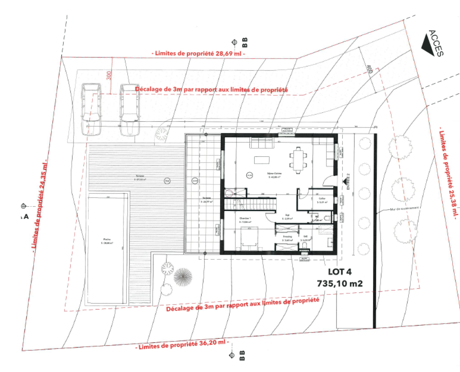
CHARMANTE VILLA NEUVE - SARROLA-CARCOPINO Sarrola-Carcopino (20167)

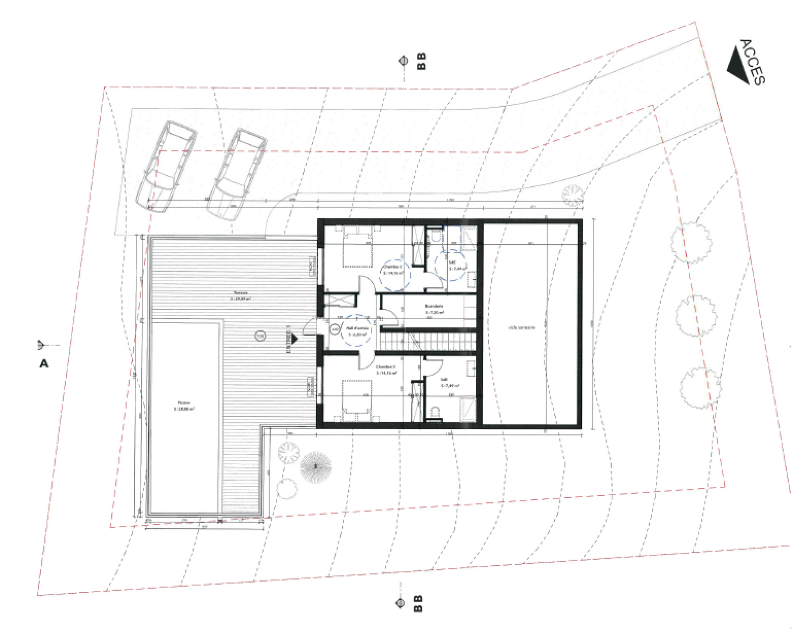
L'Agence Mariani a le plaisir de vous présenter cette charmante villa neuve de 131 m2 en VEFA, édifiée sur 2 niveaux, sur un terrain arboré et entièrement clôturé de 735 m2. Bénéficiant d'une agréable exposition Sud-Ouest, elle offre un cadre de vie lumineux et paisible.

Le rez-de-chaussée se compose d'un vaste séjour de 42 m2 avec cuisine américaine ouverte sur une terrasse de 26 m2, d'un cellier, d'un W.C visiteur, d'une suite parentale avec salle d'eau/ W.C ouverts sur terrasse également.

Au rez-de-jardin, deux grandes chambres, chacune disposant de sa propre salle d'eau avec W.C. L'ensemble s'ouvre sur une belle terrasse de 60 m2 avec piscine en béton (9 x 3 m), idéale pour profiter des beaux jours.

Les prestations sont de bonne qualité: menuiseries double-vitrage, volets roulants électriques, climatisation réversible, sols carrelés ... . La maison est construite sur vide sanitaire.

Idéalement située dans un secteur calme et résidentiel mais proche de toutes les commodités notamment de la zone d'activité de Baleone.

Les informations sur les risques auxquels ce bien est exposé sont disponibles sur le site Géorisques : www.georisques.gouv.fr

  • Général
  • Détails +
  • Financier
  • DPE
  • Copropriété
  • Quartier
Caractérisque Valeurs
Code postal 20167
Surface habitable (m²) 131 m²
Nombre de chambre(s) 3
Nombre de pièces 4
Nombre de niveaux 2
Caractérisque Valeurs
Terrasse OUI
Exposition Sud-Ouest
Caractérisque Valeurs
Prix de vente 676 000 €
Les honoraires d'agence seront intégralement à la charge du vendeur  
DPE GES
Caractérisque Valeurs
Copropriété NON
  • Commerces et santé
  • Loisirs
  • Ecoles
  • Transports
  • Pratique
Cette offre
vous intéresse
Contacter l'agence
04.95.21.10.84

* champs obligatoires

Les informations recueillies sur ce formulaire sont enregistrées dans un fichier informatisé par La Boite Immo agissant comme Sous-traitant du traitement pour la gestion de la clientèle/prospects de l'Agence / du Réseau qui reste Responsable du Traitement de vos Données personnelles. La base légale du traitement repose sur l'intérêt légitime de l'Agence / du Réseau. Elles sont conservées jusqu'à demande de suppression et sont destinées à l'Agence / au Réseau. Conformément à la loi « informatique et libertés », vous disposez des droits d’accès, de rectification, d’effacement, d’opposition, de limitation et de portabilité de vos données. Vous pouvez retirer votre consentement à tout moment en contactant directement l’Agence / Le Réseau. Consultez le site https://cnil.fr/fr pour plus d’informations sur vos droits. Si vous estimez, après avoir contacté l'Agence / le Réseau, que vos droits « Informatique et Libertés » ne sont pas respectés, vous pouvez adresser une réclamation à la CNIL. Nous vous informons de l’existence de la liste d'opposition au démarchage téléphonique « Bloctel », sur laquelle vous pouvez vous inscrire ici : https://www.bloctel.gouv.fr Dans le cadre de la protection des Données personnelles, nous vous invitons à ne pas inscrire de Données sensibles dans le champ de saisie libre.
Ce site est protégé par reCAPTCHA, les Politiques de Confidentialité et les Conditions d'Utilisation de Google s'appliquent.

Partager le bien
Nos outils
Imprimer Imprimer
Calculatrice financière

* Champ obligatoire

Partager l'annonce

* champs obligatoires

Les informations recueillies sur ce formulaire sont enregistrées dans un fichier informatisé par La Boite Immo agissant comme Sous-traitant du traitement pour la gestion de la clientèle/prospects de l'Agence / du Réseau qui reste Responsable du Traitement de vos Données personnelles. La base légale du traitement repose sur l'intérêt légitime de l'Agence / du Réseau. Elles sont conservées jusqu'à demande de suppression et sont destinées à l'Agence / au Réseau. Conformément à la loi « informatique et libertés », vous disposez des droits d’accès, de rectification, d’effacement, d’opposition, de limitation et de portabilité de vos données. Vous pouvez retirer votre consentement à tout moment en contactant directement l’Agence / Le Réseau. Consultez le site https://cnil.fr/fr pour plus d’informations sur vos droits. Si vous estimez, après avoir contacté l'Agence / le Réseau, que vos droits « Informatique et Libertés » ne sont pas respectés, vous pouvez adresser une réclamation à la CNIL. Nous vous informons de l’existence de la liste d'opposition au démarchage téléphonique « Bloctel », sur laquelle vous pouvez vous inscrire ici : https://www.bloctel.gouv.fr Dans le cadre de la protection des Données personnelles, nous vous invitons à ne pas inscrire de Données sensibles dans le champ de saisie libre.
Ce site est protégé par reCAPTCHA, les Politiques de Confidentialité et les Conditions d'Utilisation de Google s'appliquent.

Partager avec vos proches

Facebook Facebook
Messenger Messenger
Twitter Twitter
WhatsApp WhatsApp
LinkedIn LinkedIn
Copier le lien Copier le lien
Détail des diagnostics énergétiques
DPE GES
DPE ANCIENNE VERSION
Nous contacter

Remplissez ce formulaire, nous ferons de notre mieux pour vous répondre dans les meilleurs délais.

04.95.21.10.84
E-mail ajaccio@letuc.com

9 boulevard Sampiero 20000 Ajaccio

TRAD_MELTEM_voscoordonnees
TRAD_MELTEM_voredemande
Règlementation

* Champ obligatoire

Les informations recueillies sur ce formulaire sont enregistrées dans un fichier informatisé par La Boite Immo agissant comme Sous-traitant du traitement pour la gestion de la clientèle/prospects de l'Agence / du Réseau qui reste Responsable du Traitement de vos Données personnelles. La base légale du traitement repose sur l'intérêt légitime de l'Agence / du Réseau. Elles sont conservées jusqu'à demande de suppression et sont destinées à l'Agence / au Réseau. Conformément à la loi « informatique et libertés », vous disposez des droits d’accès, de rectification, d’effacement, d’opposition, de limitation et de portabilité de vos données. Vous pouvez retirer votre consentement à tout moment en contactant directement l’Agence / Le Réseau. Consultez le site https://cnil.fr/fr pour plus d’informations sur vos droits. Si vous estimez, après avoir contacté l'Agence / le Réseau, que vos droits « Informatique et Libertés » ne sont pas respectés, vous pouvez adresser une réclamation à la CNIL. Nous vous informons de l’existence de la liste d'opposition au démarchage téléphonique « Bloctel », sur laquelle vous pouvez vous inscrire ici : https://www.bloctel.gouv.fr Dans le cadre de la protection des Données personnelles, nous vous invitons à ne pas inscrire de Données sensibles dans le champ de saisie libre.
Ce site est protégé par reCAPTCHA, les Politiques de Confidentialité et les Conditions d'Utilisation de Google s'appliquent.

Se connecter
Espace propriétaire
Page d'accueil
Adhérents

© 2026 | Tous droits réservés | Traduction powered by Google |

  • Nos honoraires
  • Plan du site
  • Mentions légales
  • Admin
  • Nos liens
  • Politique RGPD

Comme beaucoup, notre site utilise les cookies

On aimerait vous accompagner pendant votre visite. En poursuivant, vous acceptez l'utilisation des cookies par ce site, afin de vous proposer des contenus adaptés et réaliser des statistiques !

Paramétrer

Cookies fonctionnelsCes cookies sont indispensables à la navigation sur le site, pour vous garantir un fonctionnement optimal. Ils ne peuvent donc pas être désactivés.

Statistiques de visitesPour améliorer votre expérience, on a besoin de savoir ce qui vous intéresse !
Les données récoltées sont anonymisées.

?

Google Analytics

En savoir plus